找回密码
 立即注册

QQ登录

只需一步,快速开始

微信扫码登录

搜索
查看: 2377|回复: 2

[求助] 各位大师,UG制图里面,标注坐标尺寸的这个线条应该怎么设置啊

[复制链接]

2

主题

2

回帖

57

积分

上等兵

积分
57
发表于 2021-8-16 23:57:09 | 显示全部楼层 |阅读模式
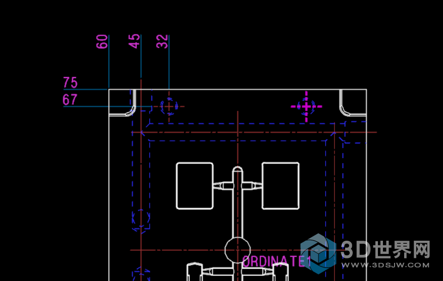
我在UG制图里面,标注坐标尺寸的这个线条应该怎么设置啊,我设置半天都不对。图1是我现在的线条,图2是我想要的样子

图1

图1

图2

图2

0

主题

22

回帖

202

积分

一级士官

积分
202
发表于 2021-8-31 15:09:03 | 显示全部楼层
在制图应用模块中   菜单>>首选项 >>制图在制图首选项中   尺寸>>坐标    显示尺寸线前面的√去掉
另外,如果坐标尺寸中显示了负值,是因为在正方向中选择了"用户定义",如果不想要负值,改成"全部"即可

2021-08-31_150808.png

17

主题

1013

回帖

7063

积分

少校

积分
7063
发表于 2021-8-17 11:43:19 | 显示全部楼层
去CAD里设置一下不是很快啊
您需要登录后才可以回帖 登录 | 立即注册

本版积分规则

咨询QQ:1359218528|发帖须知!|Archiver|手机版|小黑屋|UG爱好者论坛 ( 京ICP备10217105号-2 )

GMT+8, 2025-12-21 13:13

Powered by Discuz! X3.5 Licensed

© 2001-2025 Discuz! Team.

快速回复 返回顶部 返回列表