找回密码
 立即注册

QQ登录

只需一步,快速开始

微信扫码登录

搜索
查看: 228|回复: 6

[已回复] 打印时,图像为什么是颠倒了

[复制链接]

110

主题

212

回帖

1414

积分

六级士官

积分
1414
发表于 2025-11-3 14:24:17 | 显示全部楼层 |阅读模式
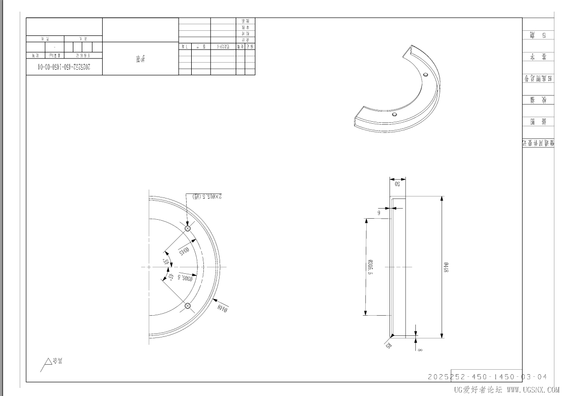
请问:打印时,图像为什么是颠倒了

PixPin_2025-11-03_14-23-58.jpg

5

主题

601

回帖

5025

积分

上尉

积分
5025
发表于 2025-11-3 15:51:49 | 显示全部楼层
这个世界那么颠,它不就倒了嘛!

5

主题

168

回帖

439

积分

二级士官

积分
439
发表于 2025-11-3 16:49:48 来自手机 | 显示全部楼层
迷航* 发表于 2025-11-3 15:51
这个世界那么颠,它不就倒了嘛!

大师,你也是个人才。

1

主题

64

回帖

238

积分

一级士官

积分
238
发表于 2025-11-3 17:25:34 | 显示全部楼层
应该是设置问题,你检查一下你设置,

5

主题

337

回帖

1万

积分

中校

积分
12601
发表于 2025-11-3 19:04:06 | 显示全部楼层
如果你制图就是颠的,那应该是模版问题
如果你是导出的PDF打印,可以旋转一下
其实它颠不颠,又不影响你打印出来的效果
嘿嘿

110

主题

212

回帖

1414

积分

六级士官

积分
1414
 楼主| 发表于 2025-11-3 19:46:56 | 显示全部楼层
快乐皆度 发表于 2025-11-3 19:04
如果你制图就是颠的,那应该是模版问题
如果你是导出的PDF打印,可以旋转一下
其实它颠不颠,又不影响你打印 ...

是无所谓,神奇的NX,就是个,娱乐效果!

40

主题

233

回帖

8438

积分

少校

积分
8438
发表于 2025-11-3 20:06:30 | 显示全部楼层
打印机设置的问题
您需要登录后才可以回帖 登录 | 立即注册

本版积分规则

咨询QQ:1359218528|发帖须知!|Archiver|手机版|小黑屋|UG爱好者论坛 ( 京ICP备10217105号-2 )

GMT+8, 2025-12-20 16:52

Powered by Discuz! X3.5 Licensed

© 2001-2025 Discuz! Team.

快速回复 返回顶部 返回列表