找回密码
 立即注册

QQ登录

只需一步,快速开始

微信扫码登录

搜索
查看: 327|回复: 2

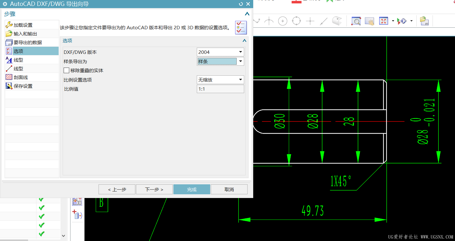
[求助] 大佬们,为啥我UG图纸导出圆柱式尺寸会被打断啊

[复制链接]

2

主题

77

回帖

504

积分

三级士官

积分
504
发表于 2025-11-19 16:30:13 | 显示全部楼层 |阅读模式

0

主题

774

回帖

1534

积分

六级士官

积分
1534
发表于 2025-11-20 10:12:38 | 显示全部楼层
有没有大神教一下,我也想学

2

主题

77

回帖

504

积分

三级士官

积分
504
 楼主| 发表于 2025-11-25 09:23:13 | 显示全部楼层
您需要登录后才可以回帖 登录 | 立即注册

本版积分规则

咨询QQ:1359218528|发帖须知!|Archiver|手机版|小黑屋|UG爱好者论坛 ( 京ICP备10217105号-2 )

GMT+8, 2026-5-11 13:25

Powered by Discuz! X3.5 Licensed

© 2001-2025 Discuz! Team.

快速回复 返回顶部 返回列表