找回密码
 立即注册

QQ登录

只需一步,快速开始

微信扫码登录

搜索
查看: 5134|回复: 6

[求助] UG图纸涉及表达式,修改尺寸

[复制链接]

2

主题

17

回帖

102

积分

上等兵

积分
102
发表于 2016-1-15 04:36:44 | 显示全部楼层 |阅读模式
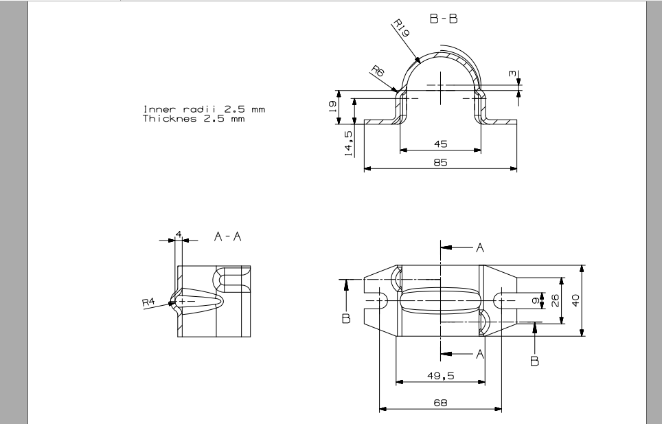
题目要求如下:
1,先不画顶部半月形,左右两侧凸起物相距24,体积=12949.4
2,改宽度85→70,改顶部半径19→22,左右凸起物形状不变,体积=12391.1
3,加上半月形,体积=12881.2
4,改半月形半径4→5,深度4→3,体积=12657.3


2016-01-14 (1).png


第一步会,但是第二步就怎么都不会改,应该是第一步方法就不对,求指教!

357

主题

4043

回帖

1万

积分

大校

积分
17602

论坛技术员论坛元老论坛贡献灌水王推广达人活跃会员一等奖二等奖三等奖

发表于 2016-1-15 10:55:13 | 显示全部楼层
小弟有点看不懂这个图纸

2

主题

17

回帖

102

积分

上等兵

积分
102
 楼主| 发表于 2016-1-15 14:39:46 | 显示全部楼层
励学励行 发表于 2016-1-15 10:55
小弟有点看不懂这个图纸

这个不是标准图纸,先看右下角,然后再看左边和右上两张剖面图。

357

主题

4043

回帖

1万

积分

大校

积分
17602

论坛技术员论坛元老论坛贡献灌水王推广达人活跃会员一等奖二等奖三等奖

发表于 2016-1-15 14:48:07 | 显示全部楼层
试用费 发表于 2016-1-15 14:39
这个不是标准图纸,先看右下角,然后再看左边和右上两张剖面图。

改是什么意思?两边直接加7.5MM吗? 修改顶部的尺寸?

2

主题

17

回帖

102

积分

上等兵

积分
102
 楼主| 发表于 2016-1-15 14:54:13 | 显示全部楼层
励学励行 发表于 2016-1-15 14:48
改是什么意思?两边直接加7.5MM吗? 修改顶部的尺寸?

原先宽度85mm,通过表达式把85改成70,使宽度变成70mm

357

主题

4043

回帖

1万

积分

大校

积分
17602

论坛技术员论坛元老论坛贡献灌水王推广达人活跃会员一等奖二等奖三等奖

发表于 2016-1-15 14:59:16 | 显示全部楼层
试用费 发表于 2016-1-15 14:54
原先宽度85mm,通过表达式把85改成70,使宽度变成70mm

函数没学好 ,表达式只会简单的套公式- - @jiaojianyaya

112

主题

1311

回帖

1万

积分

大校

积分
15002
发表于 2016-12-25 21:56:36 | 显示全部楼层
这个题目用优化一步就可以了
您需要登录后才可以回帖 登录 | 立即注册

本版积分规则

咨询QQ:1359218528|发帖须知!|Archiver|手机版|小黑屋|UG爱好者论坛 ( 京ICP备10217105号-2 )

GMT+8, 2025-12-21 05:35

Powered by Discuz! X3.5 Licensed

© 2001-2025 Discuz! Team.

快速回复 返回顶部 返回列表