找回密码
 立即注册

QQ登录

只需一步,快速开始

微信扫码登录

搜索
查看: 169|回复: 1

[求助] 剖视图外轮廓线自动隐藏怎么解决???

[复制链接]

2

主题

3

回帖

42

积分

列兵

积分
42
发表于 2026-2-12 15:00:16 | 显示全部楼层 |阅读模式
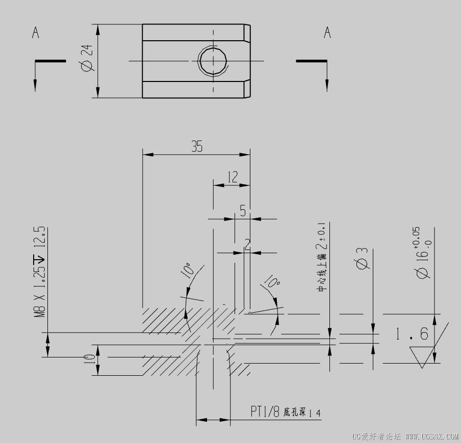
自从变成双屏办公后,剖视图外轮廓线总是自动隐藏,只有光标移到视图界线上才能全部显示,怎么解决?显卡是丽台K620,性能应该够用啊?

2.jpg 1.jpg

0

主题

768

回帖

1522

积分

六级士官

积分
1522
发表于 2026-2-13 10:13:03 | 显示全部楼层
剖视图的外轮廓线本质上是剖切线。如果剖切线被设置为“隐藏”或其线型被设为“不可见”,则轮廓线将不会显示。
您需要登录后才可以回帖 登录 | 立即注册

本版积分规则

咨询QQ:1359218528|发帖须知!|Archiver|手机版|小黑屋|UG爱好者论坛 ( 京ICP备10217105号-2 )

GMT+8, 2026-5-14 02:33

Powered by Discuz! X3.5 Licensed

© 2001-2025 Discuz! Team.

快速回复 返回顶部 返回列表